Floor Plans
- Our Custom Floor Plans
- Bring Your Own Plans
- Our Available Homes
About Us
- Our Story
- Our Mission
- Trade Partners
- FAQ's
- Custom Home Process
- Financing
Our Locations
– Beaumont, TX (CAM)
– College Station, TX (WGR)
– Canton, TX (SWH)
– Corpus Christi, TX (SWH)
– San Antonio, TX (SWH)
– Portland, TX (SWH)
– Springdale, AR (SWH)
Contact Us
- Refer A Friend
- Become A Trade Partner
- Careers
Blog
*Plan may show available options & upgrades.
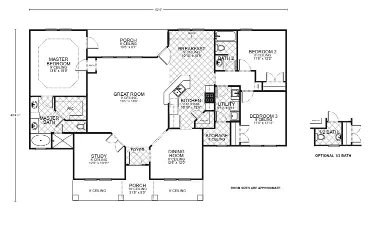
The Frio floor plan is an ideal blend of elegance and comfort, a perfect starting point for those seeking to custom-build a home with both character and contemporary conveniences. As you step through the expansive front porch, you’re welcomed into a bright foyer that leads into an impressive great room with a 9-foot ceiling, offering a spacious area for family gatherings and entertainment.
The kitchen, designed to be both functional and stylish, features ample counter space, modern appliances, and a pantry. It overlooks a charming breakfast nook, creating a perfect spot for casual dining, while the adjacent dining room is suited for more formal occasions. The study, with its own dedicated space, provides a quiet retreat for work or leisure.
The master suite is a private sanctuary with a coffered ceiling, adding an element of sophistication. It includes a well-appointed master bath with dual vanities and a generous walk-in closet, providing a serene and organized personal space. Two additional bedrooms are strategically placed to ensure privacy, with convenient access to the second full bath.
A utility room is smartly located for household chores, and the home includes additional storage spaces to keep living areas uncluttered. With a total living area of 1,880 square feet and additional porch space, this floor plan is thoughtfully designed to provide a comfortable and stylish lifestyle, making it an excellent foundation for your dream home.
Get 0% down + No Payment Until Completion
*With Approved Credit
Save On Upgrades
Receive $5,000 in Options & Upgrades
Plus: $0 Down + No Payment During Construction
*WAC
Receive $5,000 in Options & Upgrades
Plus: $0 Down + No Payment During Construction
*WAC
Save On Upgrades