Floor Plan

*Plan may show available options & upgrades.

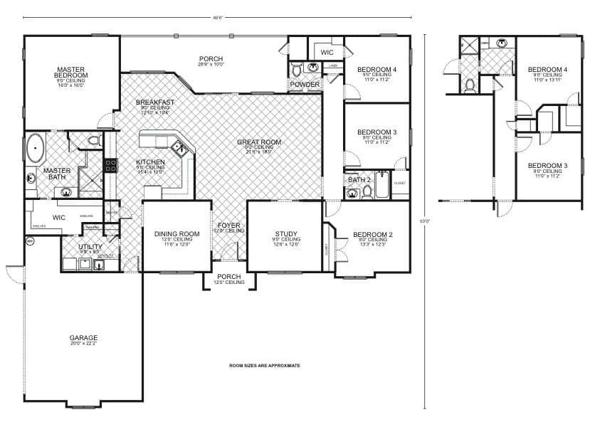
Lockhart B - Custom Home Floor Plan

This elegant and spacious floor plan presents a perfect blend of modern design and comfortable living. Boasting approximately 2422 square feet of living area, it features a grand master suite with a luxurious bath and a large walk-in closet, ensuring a private retreat for homeowners. The heart of the home is the expansive great room with a 10-foot ceiling that seamlessly connects to the kitchen and breakfast area, making it ideal for entertaining and family gatherings.

The kitchen, a chef’s delight, includes ample counter space and a practical layout for cooking and socializing. A formal dining room with a 12-foot ceiling provides an exclusive space for dinner parties. The home also offers a study room, which can double as a home office or a quiet reading nook.

Three additional bedrooms with generous closet space are perfect for family or guests, with two additional bathrooms providing convenience and privacy. The utility room near the garage entry serves as a practical laundry and storage area.

The plan includes a sizable two-car garage, a welcoming front porch, and a rear porch perfect for enjoying quiet evenings outdoors. The house also features distinct architectural elements like varying ceiling heights and a thoughtful division of sleeping and living areas, all under a total under-roof area of 3077 square feet, promising a blend of comfort and style for a family to build a lifetime of memories.

Mortgage Calculator

The calculated amount is an estimate, with the exact
loan terms determined on an individual basis.
Estimated calculated amount does not include taxes & insurance.
$ 200000
$ 150000
$ 750000
$
[downpayment]/[homeprice]*100
%
([homeprice]-[downpayment])*([interestrate]/100)/12/(1-Math.pow(1+([interestrate]/100)/12,-([loanterm]*12)))
$

Request More Information

Unlock "Build Now" Financing

Get 0% down + No Payment Until Completion
*With Approved Credit

$5,000

Save On Upgrades

LIMITED TIME OFFER - Sign up by 12/31/2025!

Receive $5,000 in Options & Upgrades
Plus: $0 Down + No Payment During Construction *WAC

LIMITED TIME OFFER
Sign up by 12/31/2025!

Receive $5,000 in Options & Upgrades
Plus: $0 Down + No Payment During Construction *WAC

$5,000

Save On Upgrades