Floor Plan

*Plan may show available options & upgrades.

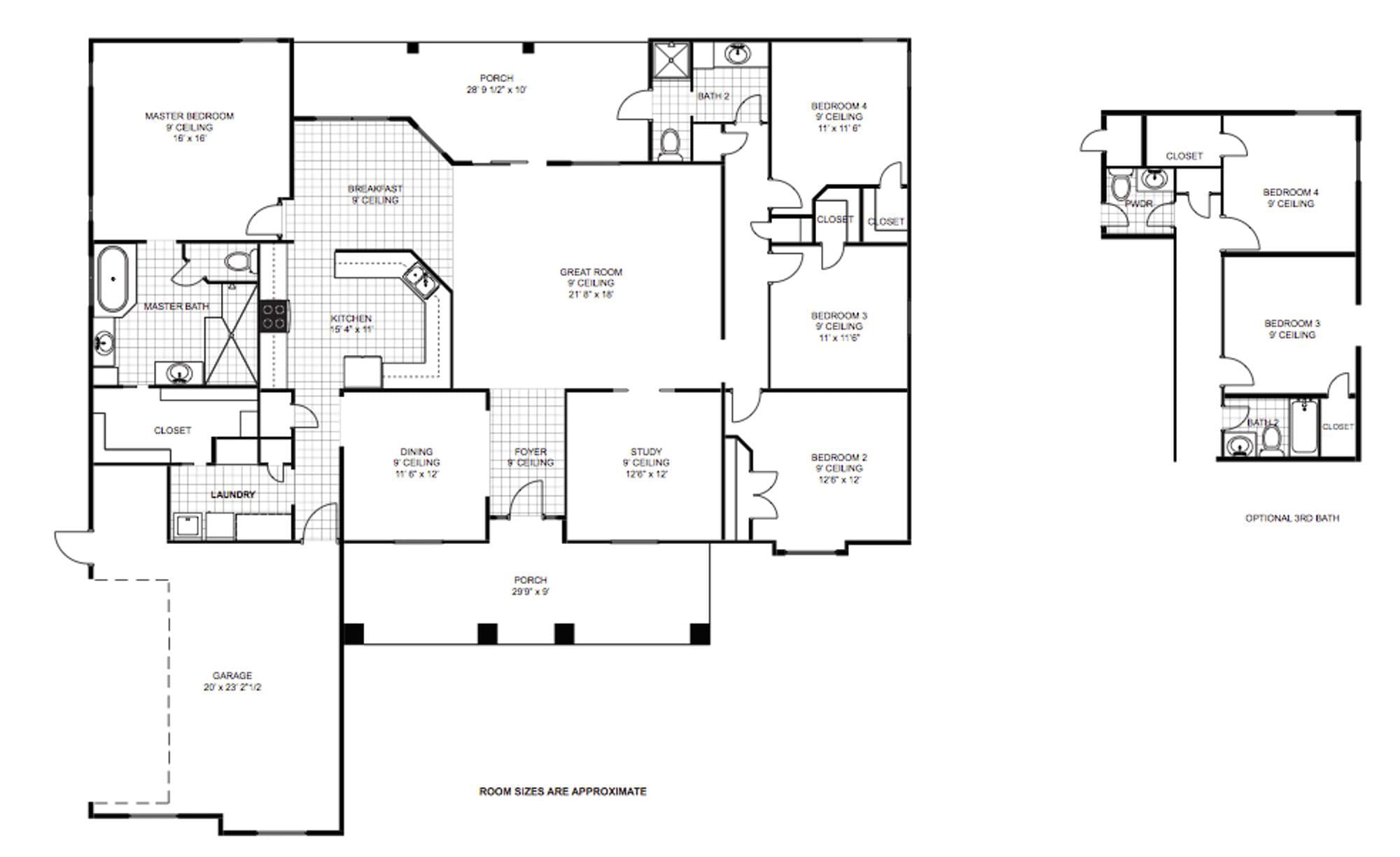
Lockhart A - Custom Home Floor Plan

The Lockhart A floor plan is a striking and modern design that offers both space and style, making it an excellent choice for those looking to build a custom home that combines luxury and practicality. The home begins with a welcoming front porch that leads to a spacious foyer, setting the tone for the open and inviting design.

The great room features a 10-foot ceiling and serves as the central hub of the home, perfect for gatherings and relaxation. The kitchen is designed with the home chef in mind, featuring a walk-in pantry and an island that opens up to a breakfast nook, creating a seamless flow for cooking and dining.

The master suite is a tranquil oasis, boasting a coffered ceiling, a spacious master bath with dual vanities, a separate shower, a garden tub, and a generous walk-in closet. The plan also includes two additional bedrooms with easy access to a full bath, ensuring comfort for family and guests.

A study adds versatility to the floor plan, making it suitable for a home office, library, or guest room. The utility room is conveniently located for household management, and the two-car garage provides ample space for vehicles and storage.

With a living area totaling 2,250 square feet, the Lockhart A floor plan is thoughtfully designed to provide a perfect balance of shared and private spaces, making it an excellent choice for those seeking a stylish and functional custom-built home.

Mortgage Calculator

The calculated amount is an estimate, with the exact
loan terms determined on an individual basis.
Estimated calculated amount does not include taxes & insurance.
$ 200000
$ 150000
$ 750000
$
[downpayment]/[homeprice]*100
%
([homeprice]-[downpayment])*([interestrate]/100)/12/(1-Math.pow(1+([interestrate]/100)/12,-([loanterm]*12)))
$

Request More Information

Unlock "Build Now" Financing

Get 0% down + No Payment Until Completion
*With Approved Credit

$5,000

Save On Upgrades

LIMITED TIME OFFER - Sign up by 12/31/2025!

Receive $5,000 in Options & Upgrades
Plus: $0 Down + No Payment During Construction *WAC

LIMITED TIME OFFER
Sign up by 12/31/2025!

Receive $5,000 in Options & Upgrades
Plus: $0 Down + No Payment During Construction *WAC

$5,000

Save On Upgrades