Floor Plan

*Plan may show available options & upgrades.

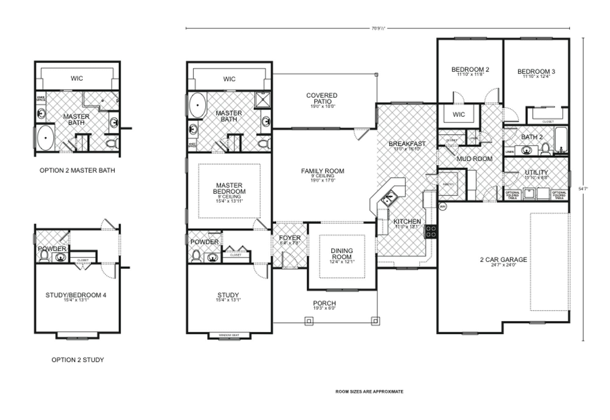
Lantana Floor Plan

The Lantana floor plan is a thoughtfully designed space that exemplifies contemporary living with a touch of traditional charm, ideal for building a custom home that meets all your desires. The expansive front porch opens into an inviting foyer that leads to a family room with a 9-foot ceiling, offering a vast area for family enjoyment and entertainment.

The heart of the home is the kitchen, designed with functionality and style in mind, featuring an island, a walk-in pantry, and a cozy breakfast nook that overlooks a covered patio, perfect for alfresco dining or morning coffee. The formal dining room provides a separate space for more elegant occasions.

The master suite is crafted as a private sanctuary, with a spacious bedroom, an optional master bath layout, and a large walk-in closet. The home includes two additional bedrooms, each with easy access to the second full bath, and a study that can also serve as a fourth bedroom, offering flexibility for your lifestyle needs.

A utility room and a mudroom ensure practical daily management, and the two-car garage provides ample space for vehicles and storage. With a living area of 2,449 square feet, the Lantana floor plan is designed to provide comfort, elegance, and practicality, making it a wonderful choice for those seeking a home that is both inviting and functional.

Mortgage Calculator

The calculated amount is an estimate, with the exact
loan terms determined on an individual basis.
Estimated calculated amount does not include taxes & insurance.
$ 200000
$ 150000
$ 750000
$
[downpayment]/[homeprice]*100
%
([homeprice]-[downpayment])*([interestrate]/100)/12/(1-Math.pow(1+([interestrate]/100)/12,-([loanterm]*12)))
$

Request More Information

Unlock "Build Now" Financing

Get 0% down + No Payment Until Completion
*With Approved Credit

$5,000

Save On Upgrades

LIMITED TIME OFFER - Sign up by 12/31/2025!

Receive $5,000 in Options & Upgrades
Plus: $0 Down + No Payment During Construction *WAC

LIMITED TIME OFFER
Sign up by 12/31/2025!

Receive $5,000 in Options & Upgrades
Plus: $0 Down + No Payment During Construction *WAC

$5,000

Save On Upgrades