Floor Plans
- Our Custom Floor Plans
- Bring Your Own Plans
- Our Available Homes
About Us
- Our Story
- Our Mission
- Trade Partners
- FAQ's
- Custom Home Process
- Financing
Our Locations
– Beaumont, TX (CAM)
– College Station, TX (WGR)
– Canton, TX (SWH)
– Corpus Christi, TX (SWH)
– San Antonio, TX (SWH)
– Portland, TX (SWH)
– Springdale, AR (SWH)
Contact Us
- Refer A Friend
- Become A Trade Partner
- Careers
Blog
*Plan may show available options & upgrades.
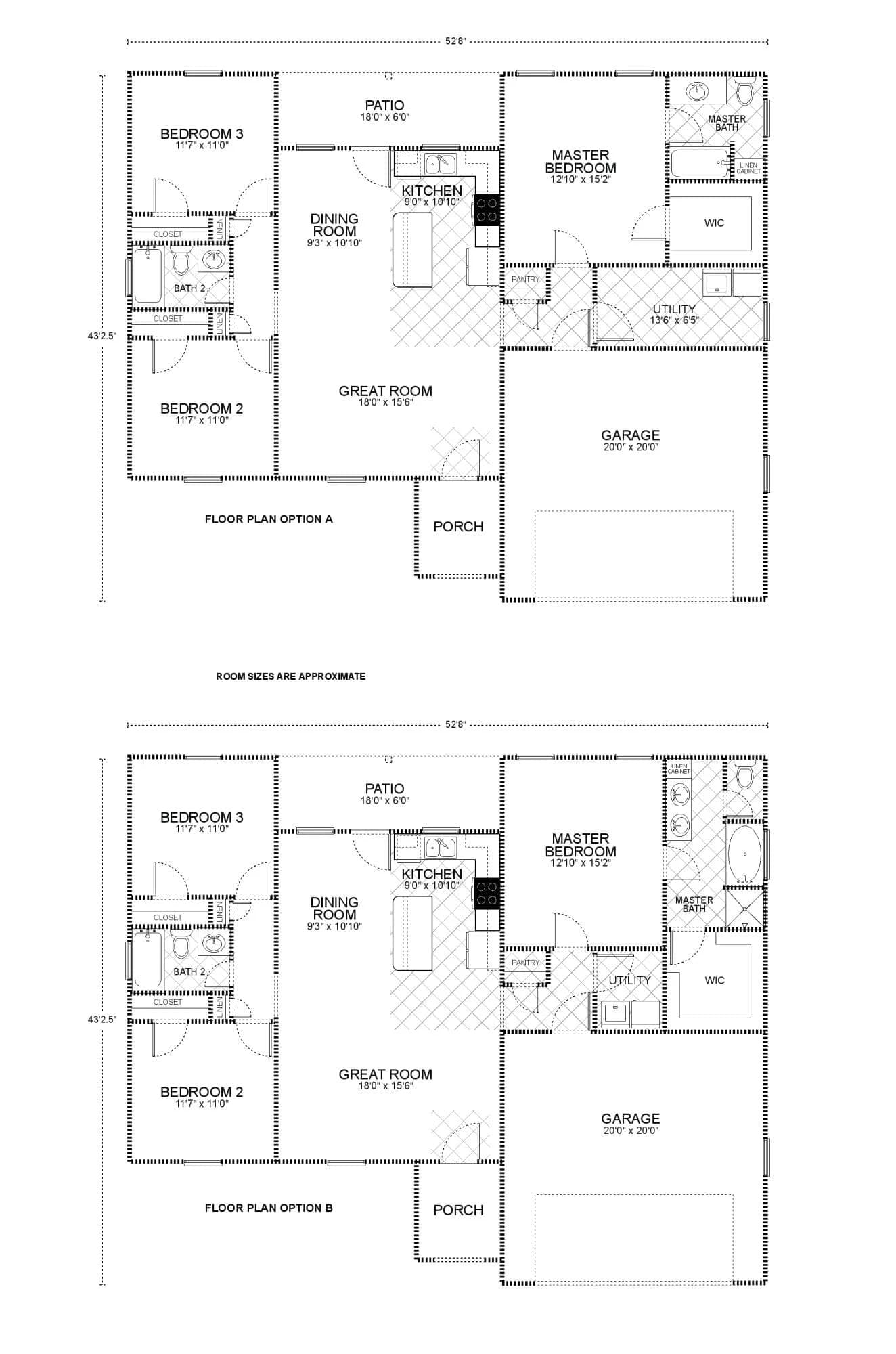
The Landry floor plan presents two options (A and B), each offering a unique take on a spacious and modern living arrangement.
Option A:
This layout features a substantial living area that is perfect for family living and entertaining, with a large great room measuring 18’0″ x 15’6″. The adjoining kitchen and dining room create an open, airy feel and a seamless flow for mealtimes and gatherings. The kitchen features ample counter space and a practical layout for convenience and ease of use. The master bedroom is a private sanctuary with a sizeable walk-in closet and a full master bath, providing a retreat-like atmosphere for relaxation. Two additional bedrooms offer comfortable spaces for family or guests, with a second full bath easily accessible. This option also includes a utility room, ensuring practicality in everyday living. The outdoor living potential is maximized with both a porch and a patio, ideal for outdoor enjoyment and entertaining.
Option B:
Similar to Option A, this floor plan offers a spacious great room and an efficiently designed kitchen and dining area. The master bedroom remains a comfortable retreat with its own bath and closet space. The second and third bedrooms are well-sized, and the utility room retains its practical placement for household chores. Option B maintains the porch and patio areas, providing ample outdoor space for relaxation and entertainment.
Both options of the Landry floor plan feature a large garage and a total under-roof space that exceeds 2000 square feet, ensuring that there is plenty of room for vehicles and storage. The living spaces are carefully designed to accommodate a contemporary lifestyle, blending functionality with comfort and style.
Get 0% down + No Payment Until Completion
*With Approved Credit
Save On Upgrades
Receive $5,000 in Options & Upgrades
Plus: $0 Down + No Payment During Construction
*WAC
Receive $5,000 in Options & Upgrades
Plus: $0 Down + No Payment During Construction
*WAC
Save On Upgrades