Floor Plans
- Our Custom Floor Plans
- Bring Your Own Plans
- Our Available Homes
About Us
- Our Story
- Our Mission
- Trade Partners
- FAQ's
- Custom Home Process
- Financing
Our Locations
– Beaumont, TX (CAM)
– College Station, TX (WGR)
– Canton, TX (SWH)
– Corpus Christi, TX (SWH)
– San Antonio, TX (SWH)
– Portland, TX (SWH)
– Springdale, AR (SWH)
Contact Us
- Refer A Friend
- Become A Trade Partner
- Careers
Blog
*Plan may show available options & upgrades.
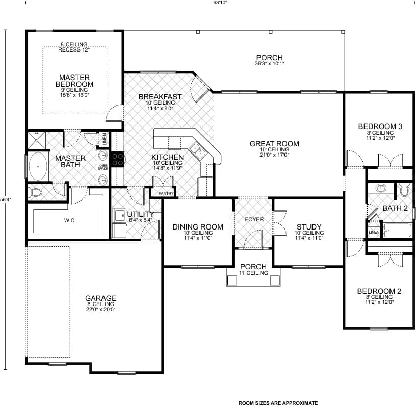
The Hillsboro C floor plan is a beautifully crafted layout, ideal for those looking to build a custom home that combines functional design with aesthetic appeal. The plan features a sprawling porch leading into a welcoming foyer, which then opens up to a spacious great room with a 10-foot ceiling—perfect for hosting guests or enjoying family time.
The kitchen, thoughtfully situated at the heart of the home, boasts a pantry and a sizable island that overlooks the breakfast area, ensuring meals are a communal and inviting experience. The formal dining room, with its own elegant ceiling design, offers a dedicated space for sit-down meals.
The master suite is a luxurious retreat, with a tray ceiling in the bedroom for added depth and style, a lavish master bath, and a walk-in closet. The home also includes two additional bedrooms, each with easy access to a full bathroom, ensuring comfort and privacy for all inhabitants.
A utility room provides practical space for household management, while a study offers the flexibility to serve as a home office, library, or extra bedroom. With a living area totaling 2,051 square feet, this floor plan is an excellent canvas for creating a home that’s as cozy as it is sophisticated, offering a seamless blend of public and private spaces to cater to any lifestyle.
Get 0% down + No Payment Until Completion
*With Approved Credit
Save On Upgrades
Receive $5,000 in Options & Upgrades
Plus: $0 Down + No Payment During Construction
*WAC
Receive $5,000 in Options & Upgrades
Plus: $0 Down + No Payment During Construction
*WAC
Save On Upgrades